
Casa Pátio Bambu
local
São Carlos - SP
ano
2023
área
200 m²
tipo de projeto
Reforma
Localizada em São Carlos – SP, a Casa Pátio Bambu nasce do encontro entre dois elementos que estruturam não apenas o projeto, mas também a experiência de morar: o pátio frontal e o bambu. O nome não é acaso — ele celebra a potência desses dois protagonistas. O pátio organiza o cotidiano e abre espaço para a contemplação e o convívio com a natureza. Já o bambu, com sua presença marcante e orgânica, cria uma atmosfera ao mesmo tempo rústica e sofisticada, e é um símbolo da arquitetura sustentável.
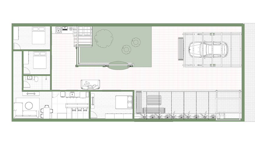
A cliente chegou até nós com um desejo claro: transformar a casa para que ela pudesse ser alugada — afinal, ela mesma não se sentia feliz ali. Durante a visita técnica, percebemos que o maior desconforto não estava no interior, mas no que vinha antes dele: o pátio frontal, espaço de chegada, estava descaracterizado. Faltava materialidade, sombra, função. A varanda, que poderia ser um refúgio de relaxamento, era usada como garagem, tornando o espaço árido e pouco convidativo. E como diz o ditado: a primeira impressão é a que fica — e essa primeira impressão era de um quintal esquecido.

Arquitetura que organiza e orienta
A reforma então começou de fora para dentro. O primeiro passo foi setorizar o espaço externo, atribuindo funções claras ao dia a dia da casa: área de contemplação coberta e descoberta, área de serviço, garagem, cantinho dos cachorros, espaço para a churrasqueira. Nomear os espaços é mais do que organizar — é alinhar a arquitetura à neuroarquitetura, permitindo que o corpo e a mente reconheçam, intuitivamente, como ocupar e sentir aquele lugar.
A nova organização espacial foi guiada por princípios da biofilia, essa conexão inata que sentimos com a natureza. O desenho do piso orienta a circulação e reduz a sobrecarga mental. As novas coberturas e telhas translúcidas criam jogos de luz e sombra — fundamentais para o conforto visual e emocional. Afinal, como yin e yang, é o contraste que dá valor: o sol só é pleno quando existe sombra, e vice-versa.


Privacidade, fluidez e bem-estar biofílico
Para aumentar a privacidade sem comprometer a ventilação natural, foi incluída uma cerca viva ao final da garagem. Além de sua função prática, ela ativa o padrão biofílico do “mistério” — aquele desejo sutil de querer descobrir o que há do outro lado — e embeleza o ambiente com sua presença viva.
As paletas de cores e os materiais naturais também seguem uma intenção clara: criar aconchego e conexão com a natureza. O bambu aparente, a telha termoacústica com forro amadeirado, o piso em tom terroso que evoca flores e solos antigos — tudo contribui para uma atmosfera orgânica. Até as cores da casa — rosa e verde — ressoam com padrões florais. A floreira central, por fim, atua como um convite delicado para adentrar e viver o espaço de forma plena.


Interiores com propósito e economia consciente
No interior da casa, as intervenções focaram no essencial, equilibrando beleza, praticidade e economia. A cozinha recebeu um piso de granilite com padrão alegre e uma nova bancada do mesmo material, ampliando a área de preparo e alimentação no dia a dia.
Em toda a casa, foi aplicado um piso vinílico amadeirado sobre o revestimento existente, otimizando custos e evitando o descarte de material. Já no banheiro, a solução foi ainda mais enxuta: os azulejos foram pintados com tinta epóxi da mesma cor do novo piso, criando uma sensação de unidade visual e funcionalidade sem grandes intervenções.


Mais do que uma reforma estética, a Casa Pátio Bambu é uma transformação de significado. A partir de estratégias simples, materiais naturais e princípios da arquitetura sustentável e da bioconstrução, conseguimos resgatar o conforto, a funcionalidade e o encantamento de habitar — tanto para quem chega, quanto para quem permanece. Um projeto que revela como o espaço externo, quando bem pensado, pode impactar profundamente a forma como vivemos por dentro.






















